Bilocale in vendita

Cosenza, Via Adige - Centro
€ 65.000
Prezzo aggiornato
53 Mq 53 Mq
1 bagno 1 bagno

Bilocale in vendita

Cosenza, Via Adige - Centro

Descrizione annuncio

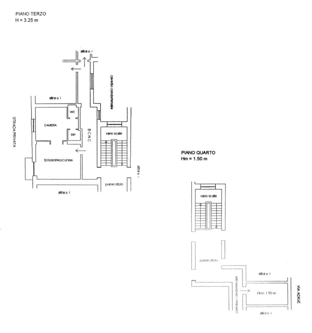
Cosenza - ( Cs ) - In Via Adige, nel centro di Cosenza, proponiamo in vendita un appartamento posto al piano terzo senza ascensore. L' immobile si presenta in buone condizioni interne e si compone di due locali, offrendo una distribuzione degli spazi pratica e accogliente. La zona giorno è luminosa e si affaccia su un balcone, perfetto per momenti di relax all'aperto. La camera da letto è spaziosa e ben illuminata, mentre il bagno è dotato di tutti i comfort essenziali. Di pertinenza una comoda soffitta.

La posizione centrale garantisce un facile accesso a tutti i servizi e le comodità che la città offre, rendendo questa proprietà un'opportunità interessante per chi desidera vivere in una delle aree più vivaci di Cosenza.

Soluzione ideale per ogni tipo di esigenza, uso abitativo, B&B, casa vacanze, investimento da mettere a rendita.

Per fissare un appuntamento chiamare in agenzia, i nostri incaricati sono a vostra disposizione dal lunedì al sabato.


Ogni agenzia ha un proprio titolare ed è autonoma.


Vi invitiamo a cliccare 'Mi piace' sulle nostre pagine Facebook ed Instragram per essere sempre aggiornati su tutte le nostre proposte immobiliari:


I nostri consulenti della Kiron, società di mediazione creditizia del Gruppo Tecnocasa, sono a vostra disposizione , fissando un incontro nei nostri uffici, per proporvi una soluzione nell'ottenimento di un mutuo o un finanziamento con una consulenza gratuita e personalizzata.
Mostra tutto

Nelle vicinanze

Trasporto pubblico Trasporto pubblico
Cosenza Centro
Cosenza Centro
380 m
Cosenza Casali
Cosenza Casali
1,4 Km
Cosenza Autostazione (1)
Cosenza Autostazione (1)
730 m
Cosenza Autostazione (2)
Cosenza Autostazione (2)
740 m
Cosenza Campanella
Cosenza Campanella
950 m
Ricariche auto elettriche Ricariche auto elettriche
Cosenza Misasi | EnelX
390 m
EnelX Fast EVA+ Cosenza
1,4 Km
Cosenza Tribunale | EnelX
1,6 Km
COSENZA Città dei Ragazzi | ENELX
2,0 Km
Mendicino Rosario | EnelX
2,2 Km
Scuole Scuole
Liceo Scientifico "Enrico Fermi"
460 m
Liceo Scientifico Enrico Fermi
540 m
Scuole
610 m
Scuola
910 m
Scuole
920 m
Farmacia Farmacia
Farmacia Beneduce Antonietta
380 m
Ospedali Ospedali
Pronto Soccorso
540 m
Ospedale di Cosenza
570 m
Biocontrol
1,3 Km
Supermercati Supermercati
GS
60 m
Interspar
240 m
Carrefour Market
370 m
Scarpelli
510 m
NaturHouse
610 m
Negozi Negozi
Panificio Occhiuto
1,4 Km
Bar Bar
Renzelli
370 m
Bar Kennedy
420 m
Bar
560 m
Panoramico
720 m
Bar San Francesco
750 m
Ristoranti Ristoranti
Ristoranti
1,3 Km
Pizzeria Le Magnolie
2,1 Km
Mostra tutto

Caratteristiche

Rif.:
61166562
Piano:
3 di 4 (Piano medio)
Balconi:
1
Camere da letto:
1
Arredamento:
Assente
Condizionamento:
Assente
Mostra tutto
Prezzo Prezzo
€ 65.000
Rata mutuo Rata mutuo
€ 309 / mese
Proponi il tuo prezzoProponi il tuo prezzo

Classe Energetica

Questo immobile è esente da classe energetica
Anno di costruzione:
1960
Riscaldamento:
Autonomo
Tipo impianto:
A radiatori
Tipo alimentazione:
Metano

Prezzo ridotto di €1 (8%%)

Ti interessa visionare l'immobile?

Fissa un appuntamento  Fissa un appuntamento

Richiedi informazioni

Clicca su Leggi per aprire l'informativa
* Questi campi sono obbligatori

Calcola il tuo mutuo

Semplice e senza impegno
Anticipo

( % )
Mutuo

( % )

pochi semplici passi

inserisci i tuoi dati
Questionario completato
Grazie per aver richiesto un appuntamento senza impegno con un nostro Consulente del Credito e Assicurativo.

Hai inserito correttamente tutti i dati necessari e a breve riceverai una e-mail con un link da convalidare per inviare i tuoi dati.
Affiliato
Immobiliare Cosenza D.I.
Via Macallè, 16 87100 Cosenza (CS)
Via Macallè, 16 87100 Cosenza (CS)
Zona: Cosenza Centro Sud
Mostra su mappa
Affiliato
Immobiliare Cosenza D.I.
Via Macallè, 16 87100 Cosenza (CS)

2026 Tecnocasa Franchising S.p.A. - P. IVA 08365160152 - Via Monte Bianco 60/A 20089 Rozzano (MI). Ogni agenzia ha un proprio titolare ed è autonoma. Privacy policy | Policy utilizzo | Cookie policy