Bilocale in vendita

Cosenza, Via Adige - Centro
€ 115.000
Prezzo aggiornato
2 locali 2 locali
86 Mq 86 Mq
1 bagno 1 bagno

Bilocale in vendita

Cosenza, Via Adige - Centro

Descrizione annuncio

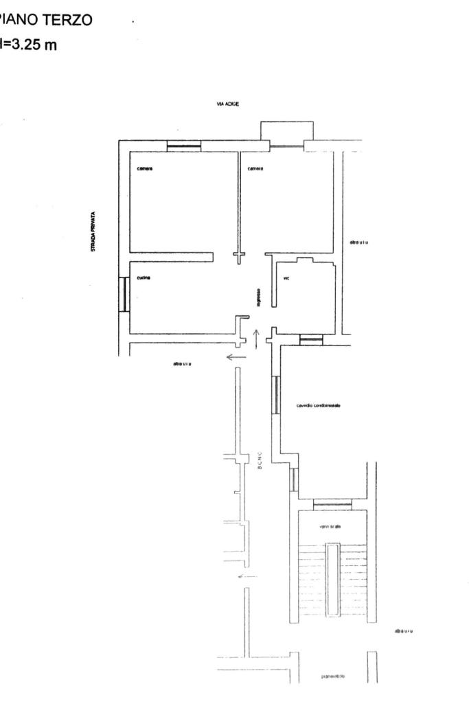
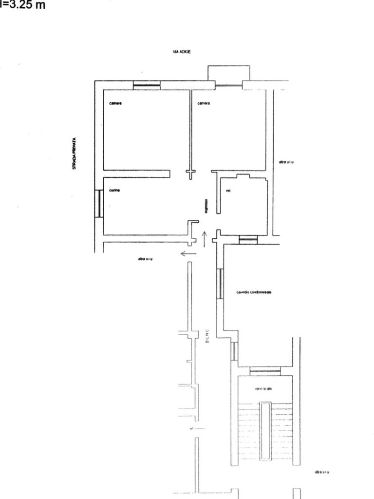
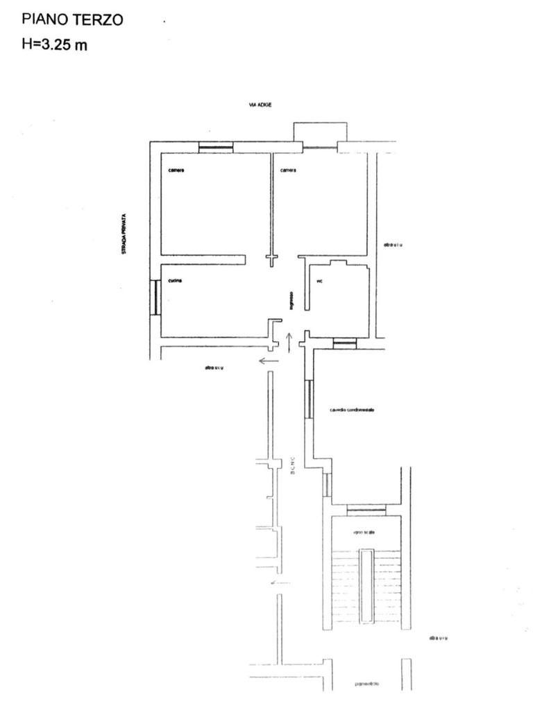
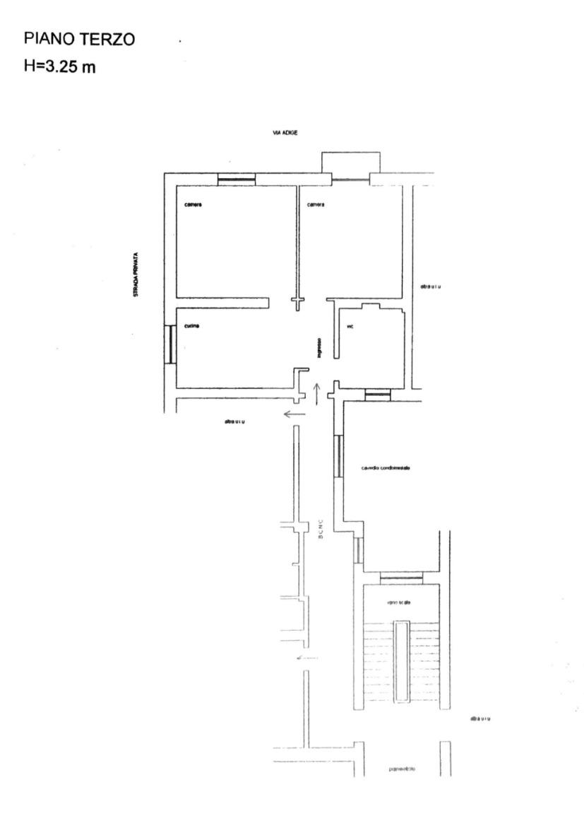
Cosenza - (CS)- Nel cuore del centro di Cosenza, in Via Adige, proponiamo in vendita un appartamento posto al piano terzo senza ascensore. L'immobile, di categoria civile, offre una disposizione funzionale degli spazi, ideale per chi cerca comfort e praticità. L'appartamento si presenta in buone condizioni interne ed è composto da due locali principali: una spaziosa camera da letto e un soggiorno che può essere utilizzato come seconda camera o area living. La cucina è separata, garantendo un ambiente comodo e funzionale. Il bagno è ben dimensionato e dotato di tutti i servizi essenziali. Un balcone completa la proprietà, offrendo uno spazio esterno per momenti di relax.

La posizione centrale permette di accedere facilmente a tutti i servizi e le comodità che la città offre, rendendo questa soluzione abitativa perfetta per chi desidera vivere nel cuore pulsante di Cosenza.

Soluzione ideale per ogni tipo di esigenza, uso abitativo, B&B, casa vacanze, investimento da mettere a rendita.

Per fissare un appuntamento chiamare in agenzia, i nostri incaricati sono a vostra disposizione dal lunedì al sabato.


Ogni agenzia ha un proprio titolare ed è autonoma.


Vi invitiamo a cliccare 'Mi piace' sulle nostre pagine Facebook ed Instragram per essere sempre aggiornati su tutte le nostre proposte immobiliari:


I nostri consulenti della Kiron, società di mediazione creditizia del Gruppo Tecnocasa, sono a vostra disposizione , fissando un incontro nei nostri uffici, per proporvi una soluzione nell'ottenimento di un mutuo o un finanziamento con una consulenza gratuita e personalizzata.
Mostra tutto

Nelle vicinanze

Trasporto pubblico Trasporto pubblico
Cosenza Centro
Cosenza Centro
400 m
Cosenza Casali
Cosenza Casali
1,4 Km
Cosenza Autostazione (1)
Cosenza Autostazione (1)
760 m
Cosenza Autostazione (2)
Cosenza Autostazione (2)
770 m
Cosenza Campanella
Cosenza Campanella
1,0 Km
Ricariche auto elettriche Ricariche auto elettriche
Cosenza Misasi | EnelX
340 m
EnelX Fast EVA+ Cosenza
1,4 Km
Cosenza Tribunale | EnelX
1,6 Km
COSENZA Città dei Ragazzi | ENELX
2,0 Km
Mendicino Rosario | EnelX
2,2 Km
Scuole Scuole
Liceo Scientifico "Enrico Fermi"
500 m
Scuole
560 m
Liceo Scientifico Enrico Fermi
580 m
Scuola
890 m
Scuole
970 m
Farmacia Farmacia
Farmacia Beneduce Antonietta
370 m
Ospedali Ospedali
Pronto Soccorso
490 m
Ospedale di Cosenza
520 m
Biocontrol
1,4 Km
Supermercati Supermercati
GS
100 m
Interspar
270 m
Carrefour Market
430 m
Scarpelli
470 m
NaturHouse
620 m
Negozi Negozi
Panificio Occhiuto
1,4 Km
Bar Bar
Renzelli
360 m
Bar Kennedy
450 m
Bar
600 m
Panoramico
740 m
Bar San Francesco
780 m
Ristoranti Ristoranti
Ristoranti
1,3 Km
Pizzeria Le Magnolie
2,1 Km
Mostra tutto

Caratteristiche

Rif.:
61166554
Piano:
3 di 4 (Piano medio)
Balconi:
1
Camere da letto:
1
Arredamento:
Assente
Condizionamento:
Assente
Mostra tutto
Prezzo Prezzo
€ 115.000
Rata mutuo Rata mutuo
€ 546 / mese
Proponi il tuo prezzoProponi il tuo prezzo

Classe Energetica

Questo immobile è esente da classe energetica
Anno di costruzione:
1960
Riscaldamento:
Autonomo
Tipo impianto:
A radiatori
Tipo alimentazione:
Metano

Prezzo ridotto di €1 (5%%)

Ti interessa visionare l'immobile?

Fissa un appuntamento  Fissa un appuntamento

Richiedi informazioni

Clicca su Leggi per aprire l'informativa
* Questi campi sono obbligatori

Calcola il tuo mutuo

Semplice e senza impegno
Anticipo

( % )
Mutuo

( % )

pochi semplici passi

inserisci i tuoi dati
Questionario completato
Grazie per aver richiesto un appuntamento senza impegno con un nostro Consulente del Credito e Assicurativo.

Hai inserito correttamente tutti i dati necessari e a breve riceverai una e-mail con un link da convalidare per inviare i tuoi dati.
Affiliato
Immobiliare Cosenza D.I.
Via Macallè, 16 87100 Cosenza (CS)
Via Macallè, 16 87100 Cosenza (CS)
Zona: Cosenza Centro Sud
Mostra su mappa
Affiliato
Immobiliare Cosenza D.I.
Via Macallè, 16 87100 Cosenza (CS)

2026 Tecnocasa Franchising S.p.A. - P. IVA 08365160152 - Via Monte Bianco 60/A 20089 Rozzano (MI). Ogni agenzia ha un proprio titolare ed è autonoma. Privacy policy | Policy utilizzo | Cookie policy