6 locali in vendita

Cosenza, Via Pasquale Perugini
€ 160.000
6 locali 6 locali
186 Mq 186 Mq
2 bagni 2 bagni

6 locali in vendita

Cosenza, Via Pasquale Perugini

Descrizione annuncio

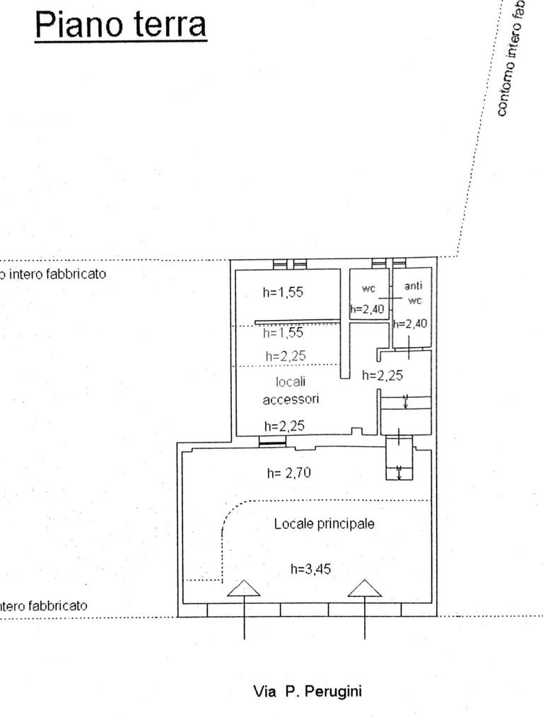
Cosenza - Su Via Pasquale Perugini, nei pressi di Piazza Riforma, proponiamo in vendita un ampio appartamento posto al piano secondo con ascensore. L'immobile offre una distribuzione spaziosa e funzionale, ideale per chi cerca comfort e praticità. E' composto da un ampio ingresso, corridoio, cucina, soggiorno, sala pranzo, doppio salone, studio, due camere da letto, due bagni, ripostiglio e tre balconi. L' appartamento necessita di lavori di ammodernamento ma si presta a diverse soluzioni abitative, permettendo di personalizzare gli ambienti a seconda delle proprie esigenze e del proprio gusto personale. La sua buona esposizione dona luminosità all'immobile con affacci liberi su tre lati. La posizione strategica consente di raggiungere facilmente i principali servizi e le aree di interesse della città. Perfetto per famiglie numerose o per chi desidera ampi spazi da vivere quotidianamente, questo appartamento rappresenta un'opportunità unica nel panorama immobiliare di Cosenza. A completare la proprietà una soffitta di circa 17 mq e due posti auto assegnati nella corte condominiale. Vi è anche la possibilità di acquistare due box auto per una metratura complessiva di 75 mq al costo di € 30.000,00.

Per fissare un appuntamento chiamare i agenzia , i nostri incaricati sono a vostra disposizione dal lunedì al sabato.

Ogni agenzia ha un proprio titolare ed è autonoma.

Vi invitiamo a cliccare 'Mi piace' sulle nostre pagine Facebook ed Instragram per essere sempre aggiornati su tutte le nostre proposte immobiliari:

I nostri consulenti della Kiron, società di mediazione creditizia del Gruppo Tecnocasa, sono a vostra disposizione , fissando un incontro nei nostri uffici, per proporvi una soluzione nell'ottenimento di un mutuo o un finanziamento con una consulenza gratuita e personalizzata.

Mostra tutto

Nelle vicinanze

Trasporto pubblico Trasporto pubblico
Cosenza Centro
Cosenza Centro
720 m
Cosenza Casali
Cosenza Casali
1,4 Km
Cosenza Autostazione (1)
Cosenza Autostazione (1)
1,3 Km
Cosenza Autostazione (2)
Cosenza Autostazione (2)
1,3 Km
Cosenza Campanella
Cosenza Campanella
1,6 Km
Ricariche auto elettriche Ricariche auto elettriche
Cosenza Misasi | EnelX
480 m
EnelX Fast EVA+ Cosenza
1,7 Km
Mendicino Rosario | EnelX
1,8 Km
Cosenza Tribunale | EnelX
2,1 Km
COSENZA Città dei Ragazzi | ENELX
2,4 Km
Scuole Scuole
Scuole
130 m
Scuola
680 m
Convitto Nazionale Bernardino Telesio
990 m
Liceo Scientifico "Enrico Fermi"
1,1 Km
Liceo Classico B. Telesio
1,1 Km
Farmacia Farmacia
Farmacia Beneduce Antonietta
480 m
Ospedali Ospedali
Ospedale di Cosenza
340 m
Pronto Soccorso
480 m
Biocontrol
1,9 Km
Supermercati Supermercati
Scarpelli
120 m
GS
630 m
Interspar
700 m
Carrefour Market
940 m
NaturHouse
1,1 Km
Negozi Negozi
Panificio Occhiuto
1,3 Km
Bar Bar
Renzelli
480 m
Bar Kennedy
970 m
Bar
1,1 Km
Panoramico
1,3 Km
Bar San Francesco
1,3 Km
Ristoranti Ristoranti
Ristoranti
1,3 Km
Pizzeria Le Magnolie
2,0 Km
Mostra tutto

Caratteristiche

Rif.:
61133345
Piano:
2 di 6 con ascensore (Piano basso)
Box:
2
Posti auto:
2
Balconi:
3
Camere da letto:
2
Mostra tutto
Prezzo Prezzo
€ 160.000
Prezzo box Prezzo box
€ 30.000
Rata mutuo Rata mutuo
€ 755 / mese
Proponi il tuo prezzoProponi il tuo prezzo

Classe Energetica

Questo immobile è esente da classe energetica
Anno di costruzione:
1970
Riscaldamento:
Autonomo
Tipo impianto:
A radiatori
Tipo alimentazione:
Metano

Ti interessa visionare l'immobile?

Fissa un appuntamento  Fissa un appuntamento

Richiedi informazioni

Clicca su Leggi per aprire l'informativa
* Questi campi sono obbligatori

Calcola il tuo mutuo

Semplice e senza impegno
Anticipo

( % )
Mutuo

( % )

pochi semplici passi

inserisci i tuoi dati
Questionario completato
Grazie per aver richiesto un appuntamento senza impegno con un nostro Consulente del Credito e Assicurativo.

Hai inserito correttamente tutti i dati necessari e a breve riceverai una e-mail con un link da convalidare per inviare i tuoi dati.
Affiliato
Immobiliare Cosenza D.I.
Via Macallè, 16 87100 Cosenza (CS)
Via Macallè, 16 87100 Cosenza (CS)
Zona: Cosenza Centro Sud
Mostra su mappa
Affiliato
Immobiliare Cosenza D.I.
Via Macallè, 16 87100 Cosenza (CS)

2025 Tecnocasa Franchising S.p.A. - P. IVA 08365160152 - Via Monte Bianco 60/A 20089 Rozzano (MI). Ogni agenzia ha un proprio titolare ed è autonoma. Privacy policy | Policy utilizzo | Cookie policy