Trilocale in vendita

Cerisano, Via Chiusa Quintieri
€ 98.000
3 locali 3 locali
151 Mq 151 Mq
1 bagno 1 bagno

Trilocale in vendita

Cerisano, Via Chiusa Quintieri

Descrizione annuncio

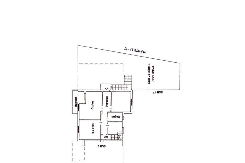
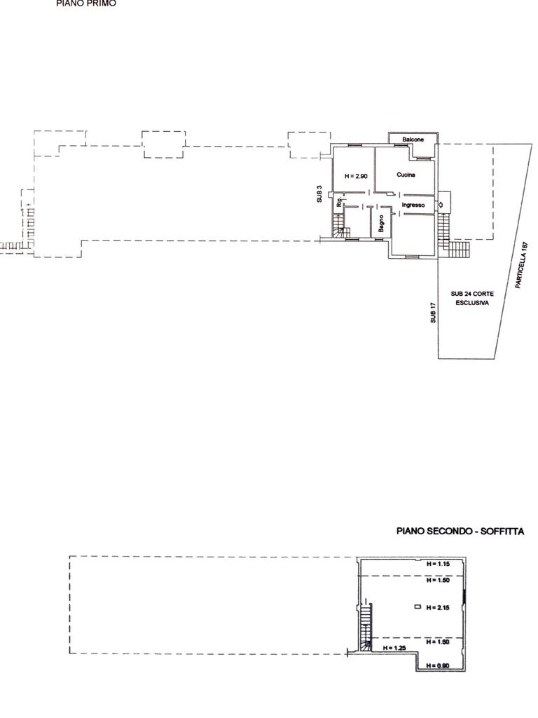
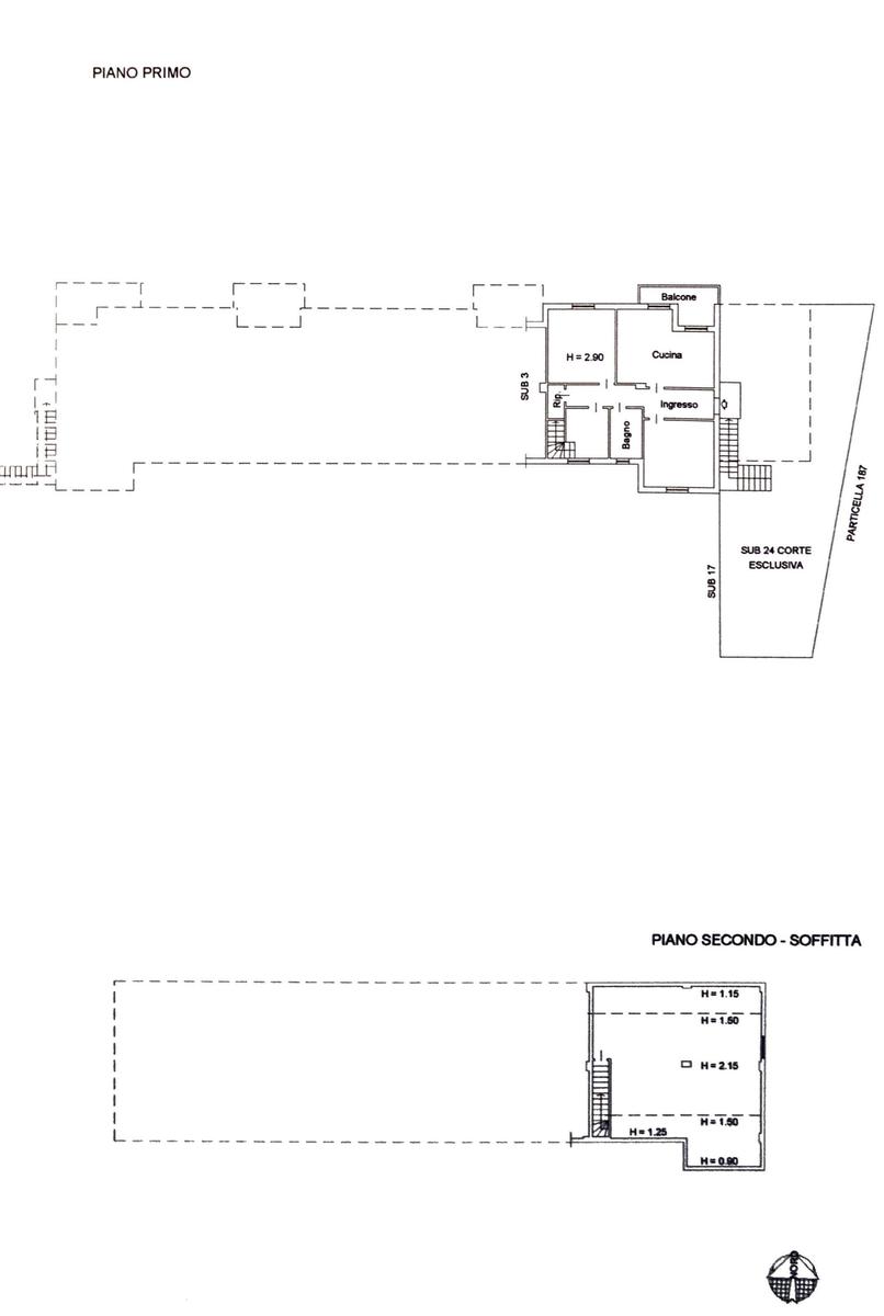
Cerisano - (Cs) - Nel comune di Cerisano, in Via Chiusa Quintieri, proponiamo in vendita un appartamento con ingresso indipendente, è situato al piano primo di un edificio residenziale costruito nel 1992. L'immobile, offre spazi ben distribuiti e funzionali ed è composto da: ingresso, corridoio, una comoda cucina, soggiorno, una camera da letto matrimoniale, una cameretta, un bagno, ripostiglio con zona lavanderia e un balcone. La scala interna nella cameretta ci porta alla soffitta che attualmente è allo stato rustico ma, con una futura ristrutturazione potrebbe essere utilizzata come studio o sala hobby. Completano la proprietà uno spazio esterno privato di circa 100 mq per godere del tempo libero all'aperto, un posto auto e un comodo box auto. Questa soluzione abitativa è perfetta per chi cerca un ambiente tranquillo e ben collegato, con tutti i servizi essenziali a portata di mano.

Per fissare un appuntamento chiamare i agenzia , i nostri incaricati sono a vostra disposizione dal lunedì al sabato.

Ogni agenzia ha un proprio titolare ed è autonoma.

Vi invitiamo a cliccare 'Mi piace' sulle nostre pagine Facebook ed Instragram per essere sempre aggiornati su tutte le nostre proposte immobiliari:

I nostri consulenti della Kiron, società di mediazione creditizia del Gruppo Tecnocasa, sono a vostra disposizione , fissando un incontro nei nostri uffici, per proporvi una soluzione nell'ottenimento di un mutuo o un finanziamento con una consulenza gratuita e personalizzata.

Mostra tutto

Nelle vicinanze

Ricariche auto elettriche Ricariche auto elettriche
Mendicino Tivolille | EnelX
1,8 Km
Mostra tutto

Caratteristiche

Rif.:
61130722
Piano:
1 di 2 (Piano basso)
Box:
1
Posti auto:
1
Balconi:
1
Camere da letto:
2
Mostra tutto
Prezzo Prezzo
€ 98.000
Rata mutuo Rata mutuo
€ 466 / mese
Proponi il tuo prezzoProponi il tuo prezzo
Immobile valutato con T·Valuta

Classe Energetica

Questo immobile è esente da classe energetica
Anno di costruzione:
1992
Riscaldamento:
Autonomo
Tipo impianto:
A radiatori
Tipo alimentazione:
Metano

Ti interessa visionare l'immobile?

Fissa un appuntamento  Fissa un appuntamento

Richiedi informazioni

Clicca su Leggi per aprire l'informativa
* Questi campi sono obbligatori

Calcola il tuo mutuo

Semplice e senza impegno
Anticipo

( % )
Mutuo

( % )

pochi semplici passi

inserisci i tuoi dati
Questionario completato
Grazie per aver richiesto un appuntamento senza impegno con un nostro Consulente del Credito e Assicurativo.

Hai inserito correttamente tutti i dati necessari e a breve riceverai una e-mail con un link da convalidare per inviare i tuoi dati.
Affiliato
Immobiliare Cosenza D.I.
Via Macallè, 16 87100 Cosenza (CS)
Via Macallè, 16 87100 Cosenza (CS)
Zona: Cosenza Centro Sud
Mostra su mappa
Affiliato
Immobiliare Cosenza D.I.
Via Macallè, 16 87100 Cosenza (CS)

2026 Tecnocasa Franchising S.p.A. - P. IVA 08365160152 - Via Monte Bianco 60/A 20089 Rozzano (MI). Ogni agenzia ha un proprio titolare ed è autonoma. Privacy policy | Policy utilizzo | Cookie policy